Instalace na toaletě je nedílnou součástí komfortu a funkčnosti sanitárních a hygienických prostor. Ale pro správnou volbu a instalaci instalace je nutné vzít v úvahu několik důležitých faktorů, včetně požadovaného množství volného místa. Je třeba si uvědomit, že prostor obsazený instalací ovlivní nejen estetiku toalety, ale také její funkčnost a snadnost použití.
Pokud jde o umístění instalace na toaletě, je třeba vzít v úvahu několik klíčových bodů. Za prvé, šířka místnosti musí být dostatečná pro instalaci instalace a poskytnout k ní pohodlný přístup. Zadruhé je nutné zajistit volný prostor, aby bylo možné v případě potřeby provést údržbu, opravu nebo výměnu instalace.
Konkrétní rozměry a požadavky na prostor pro instalaci se mohou lišit v závislosti na modelu a typu instalace. Některé instalace mohou být například instalovány v jedné rovině se stěnou, zatímco jiné vyžadují určitou vzdálenost pro přístup a údržbu. Při výběru a instalaci instalace na toaletu je nutné vzít v úvahu tyto faktory, aby byl zajištěn maximální komfort a funkčnost sanitární a hygienické místnosti.
Jaká velikost je potřebná pro instalaci vodovodních armatur na toaletě?

WC mísa

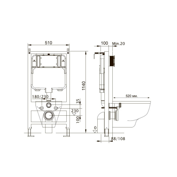
Hlavním prvkem instalatérství na toaletě je toaleta. Správně zvolená velikost a její umístění ovlivňují pohodlí a ergonomii použití. Standardní rozměry toalety jsou přibližně: šířka – 35-40 cm, hloubka – 60-70 cm, výška – 40-45 cm Existují však i kompaktní modely toalet, které lze instalovat do místností s omezeným prostorem nebo nestandardní uspořádání.
Dalším důležitým prvkem instalace toalet je umyvadlo. Plní hygienické a funkční úkoly a je také estetickým akcentem. Standardní rozměry umyvadla na WC jsou přibližně: šířka – 45-55 cm, hloubka – 35-45 cm Při výběru je důležité zohlednit velikost umyvadla, aby zajistilo pohodlné používání a nezabíralo příliš mnoho místa na toaletě.
Kromě klozetu a umyvadla je možné do klozetu osadit další klempířské prvky, jako je bidet, sprcha, baterie a další doplňky. Velikosti těchto prvků se mohou lišit a závisí na jejich konkrétních modelech a funkčnosti.
Je důležité si uvědomit, že při výběru a instalaci vodovodních armatur na toaletu je nutné vzít v úvahu nejen velikost zařizovacích předmětů, ale také prostor, který je k dispozici pro jejich umístění. Rovněž stojí za zvážení ergonomických a stylistických aspektů pro vytvoření pohodlného a harmonického prostoru na toaletě.
Velikost hlavních prvků
Při plánování instalace na toaletě je velmi důležité vzít v úvahu rozměry hlavních prvků, jako je toaleta, umyvadlo a sprcha. To vám umožní určit požadované množství prostoru pro vytvoření prostorného a pohodlného toaletního bloku.
WC mísa
Pro instalaci toalety musíte mít dostatek volného prostoru pro její umístění a použití. Typicky by toaleta měla být instalována asi 15 až 16 palců od boční stěny nebo jiných předmětů. Důležité je také zvážit výšku toalety, aby ji mohli pohodlně používat různě vysocí uživatelé.
Pro snadné použití je důležitá i velikost dřezu. Typicky by dřez měl být umístěn asi 32-34 palců od podlahy. Šířka dřezu by měla být dostatečná pro zajištění pohodlného používání, obvykle kolem 20-25 palců. Je také důležité zvážit hloubku dřezu, aby se zabránilo stříkání vody během používání.
Sprchová kabina
U sprchového koutu je také důležité zvážit rozměry, aby bylo zajištěno pohodlné používání. Standardní rozměry sprchového koutu jsou obvykle kolem 30-36 palců na šířku a 30-36 palců do hloubky. Výška sprchového koutu se může lišit, ale obvykle se pohybuje kolem 80-90 palců.
V závislosti na velikosti místnosti a potřebách uživatelů si můžete vybrat různé možnosti pro toalety, umyvadla a sprchy. Je důležité vzít v úvahu všechny velikosti hlavních prvků a poskytnout dostatečný prostor pro jejich pohodlné použití na toaletě.
Prostor k pohybu
Při návrhu toalety je nutné počítat s adekvátním prostorem pro pohyb. To je nezbytné pro pohodlí uživatelů, zejména těch, kteří mají omezenou pohyblivost nebo používají pomůcky pro podporu mobility, jako jsou invalidní vozíky.
Musí být zajištěno minimální množství prostoru pro pohyb, aby bylo možné manévrovat kolem toalety, umyvadla a dalších prvků toalety. Obvykle se doporučuje ponechat minimální šířku průchodu alespoň 80-90 centimetrů. To vám umožní zachovat pohodlný prostor pro pohyb a pohodlné používání všech prvků toalety.
Kromě šířky průchodu je potřeba zvážit i prostor kolem toalety. Je třeba ponechat dostatečný prostor pro manévrování před a po použití toalety a v případě potřeby i pro použití speciálních hygienických prostředků.
Doporučení pro umístění prvků toalety:
- Před toaletou ponechte určitý prostor, abyste usnadnili přístup a používání speciálních hygienických prostředků.
- Umístěte dřez tak, aby byl přístupný pro sedící i stojící uživatele. Doporučuje se zvážit výšku umyvadla a přítomnost podpěry (v případě potřeby).
- Ujistěte se, že všechny knoflíky a spínače jsou na úrovni přístupné pro použití sedícím uživatelem.
Bezbariérový přístup:
Pokud je toaleta určena pro bezbariérový přístup, je třeba zvážit další požadavky na prostor. Doporučuje se zajistit potřebnou šířku průchodů a také zohlednit požadavky na umístění prvků toalety, jako je toaleta, umyvadlo a zrcadlo.
Vezměte prosím na vědomí, že doporučení týkající se prostoru pro pohyb toalety se mohou lišit v závislosti na konkrétních normách a požadavcích na přístupnost ve vaší zemi. Při navrhování byste se měli řídit příslušnými technickými předpisy a směrnicemi o přístupnosti.
















